47 Photos - Rural Villa Febrer near Son Serra de Marina (Mallorca)
Photos (47)
Overview
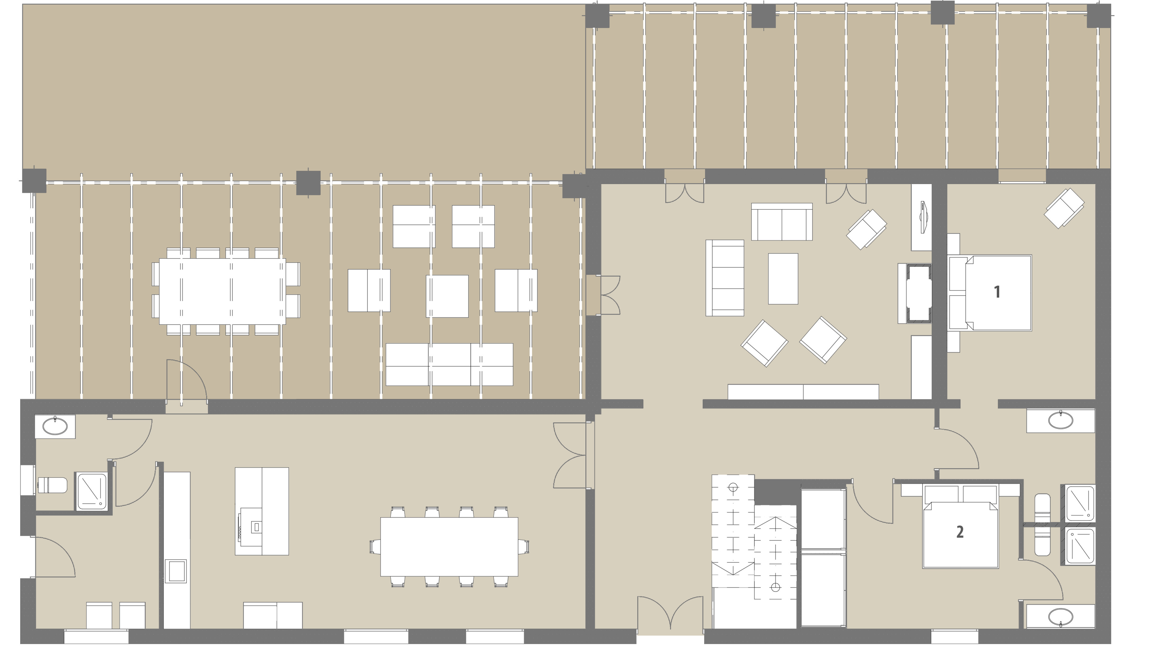
Floor Plan
Video
Overview
Floor Plan
Ground floor
Upper floor
Video