41 Photos - Rural Villa Es Carregador Uno near Cala Ratjada (Mallorca)
Photos (41)
Overview
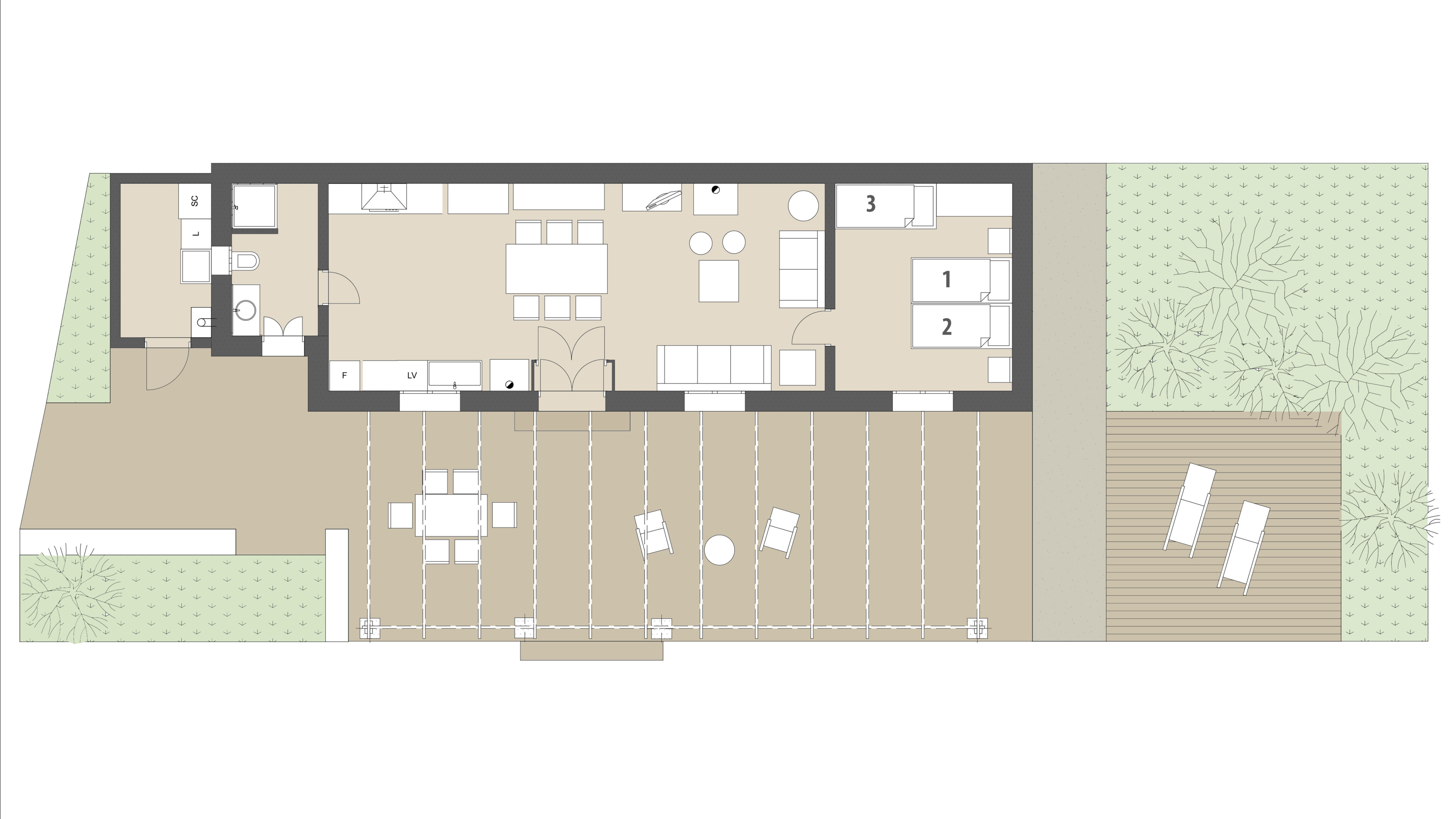
Floor Plan
Video
Overview
Floor Plan
Ground floor
Video