71 Photos - Rural Villa Es Rafal near Artà (Mallorca)
Photos (71)
Overview
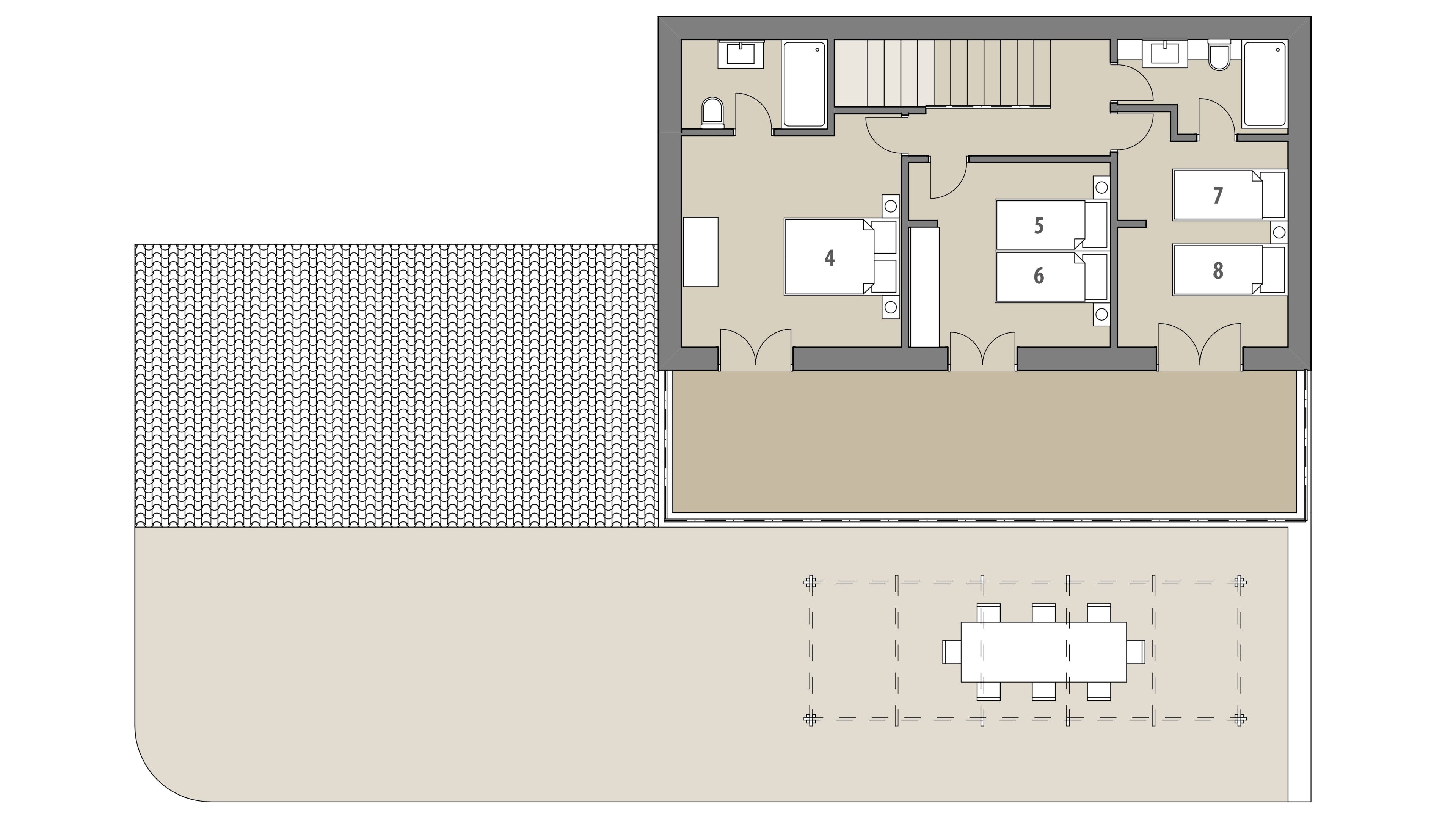
Floor Plan
Overview
Floor Plan
Ground floor
Upper floor